Estate Agents in Portadown, Northern Ireland
« Back
For sale | 4 Bed Detached House |
Price £410,000

NEW BUILD - Site B, Cranny Road , Bleary Portadown , BT63 5PB

Price £410,000

Key Information

Address NEW BUILD - Site B, Cranny Road, Bleary, Portadown
Style Detached House
Status For sale
Price Price £410,000
Bedrooms 4
Bathrooms 3
Receptions 2
Heating Oil

Additional Information

Beautiful New Dwelling

Cranny Road 

Portadown

BT63 5PB

 

If you have dreamed of a new build home in the country, we can make your dreams come true!

Just take a look at this stunning house design brought to you by Bell Building Services Limited.

Situated within easy reach of Portadown, Bleary and Lurgan this detached home is now under construction.

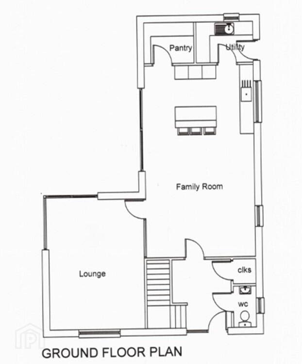
  • Four well proportioned bedrooms
  • Master with en suite and dressing room
  • Open plenned kitchen dining living
  • Separate lounge
  • Approx 1,950sqft
  • Utility and downstairs WC
  • Generous PC allowance
  • Panoramic views of the countryside

For more information contact the sales team 02838 331111

 

*** Internal images of previously completed properties by developer - finishes subject to change or upgrade***

***CGI external images for illustration purposes only - subject to change***

Need some more information?

Fill in your details below and a member of our team will get back to you.

Please check you have entered all details correctly: