Joyce Clarke Estate Agents

NEW BUILD - Site B, Cranny Road, Bleary , Portadown BT63 5PB

4 Bed Detached House For Sale

Price £410,000

Print additional images & map (disable to save ink)

Photo 1 of NEW BUILD - Site B, Cranny Road, Bleary, Portadown

Telephone:

028 3833 1111

View Online:

www.joyceclarke.team/1061897

Key Information

Address NEW BUILD - Site B, Cranny Road, Bleary, Portadown
Style Detached House
Status For sale
Price Price £410,000
Bedrooms 4
Bathrooms 3
Receptions 2
Heating Oil

Additional Information

Beautiful New Dwelling

Cranny Road 

Portadown

BT63 5PB

 

If you have dreamed of a new build home in the country, we can make your dreams come true!

Just take a look at this stunning house design brought to you by Bell Building Services Limited.

Situated within easy reach of Portadown, Bleary and Lurgan this detached home is now under construction.

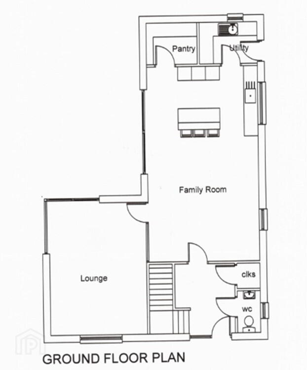
  • Four well proportioned bedrooms
  • Master with en suite and dressing room
  • Open plenned kitchen dining living
  • Separate lounge
  • Approx 1,950sqft
  • Utility and downstairs WC
  • Generous PC allowance
  • Panoramic views of the countryside

For more information contact the sales team 02838 331111

 

*** Internal images of previously completed properties by developer - finishes subject to change or upgrade***

***CGI external images for illustration purposes only - subject to change***

  • Joyce Clarke Estate Agents

    Joyce Clarke Estate Agents

    028 3833 1111

Photo Gallery

Photo 1 of NEW BUILD - Site B, Cranny Road, Bleary, Portadown Photo 2 of NEW BUILD - Site B, Cranny Road, Bleary, Portadown Photo 3 of NEW BUILD - Site B, Cranny Road, Bleary, Portadown Photo 4 of NEW BUILD - Site B, Cranny Road, Bleary, Portadown Photo 5 of NEW BUILD - Site B, Cranny Road, Bleary, Portadown Photo 6 of NEW BUILD - Site B, Cranny Road, Bleary, Portadown Photo 7 of NEW BUILD - Site B, Cranny Road, Bleary, Portadown Photo 8 of NEW BUILD - Site B, Cranny Road, Bleary, Portadown Photo 9 of NEW BUILD - Site B, Cranny Road, Bleary, Portadown Photo 10 of NEW BUILD - Site B, Cranny Road, Bleary, Portadown Photo 11 of NEW BUILD - Site B, Cranny Road, Bleary, Portadown Photo 12 of NEW BUILD - Site B, Cranny Road, Bleary, Portadown Photo 13 of NEW BUILD - Site B, Cranny Road, Bleary, Portadown Photo 14 of NEW BUILD - Site B, Cranny Road, Bleary, Portadown Photo 15 of NEW BUILD - Site B, Cranny Road, Bleary, Portadown Photo 16 of NEW BUILD - Site B, Cranny Road, Bleary, Portadown Photo 17 of NEW BUILD - Site B, Cranny Road, Bleary, Portadown Photo 18 of NEW BUILD - Site B, Cranny Road, Bleary, Portadown Photo 19 of NEW BUILD - Site B, Cranny Road, Bleary, Portadown Floorplan 1 of NEW BUILD - Site B, Cranny Road, Bleary, Portadown Floorplan 2 of NEW BUILD - Site B, Cranny Road, Bleary, Portadown Floorplan 3 of NEW BUILD - Site B, Cranny Road, Bleary, Portadown

Visit www.joyceclarke.team for further details.