Estate Agents in Portadown, Northern Ireland
« Back
Sale agreed | 4 Bed Detached House |
Sale agreed Price Not Provided

Htb , Blackskull Dromore

Sale agreed Price Not Provided

Key Information

House Type HTB
Style Detached House
Status Sale agreed
Price Price Not Provided
Bedrooms 4
Bathrooms 3
Receptions 1
Heating Oil

Property Units

Unit Name Price Size
Site 3 Clover Heights Sold 1,358 sq. feet
Site 8 Clover Heights Sale agreed 1,358 sq. feet
Site 9 Clover Heights Sale agreed 1,358 sq. feet

Additional Information

Specification includes: 

Traditional brick & block construction
• Choice of turnkey kitchen & utility room (including appliances)
• High insulation and sound proof qualities
• Energy efficient homes, with solar panels
• Low maintenance uPVC double glazed windows
• Composite front doors
• Contemporary oak panel interior doors
• Satin chrome style door handles
• Staircase with oak handrail & painted spindles
• Splayed architrave & skirting, painted finish
• Comprehensive electrical specification
• Tarmac driveway
• Security alarm installed
• Floor coverings
• Walls painted
• White bathroom suites
• Stove
• lawns top soiled & seeded or turfed

 

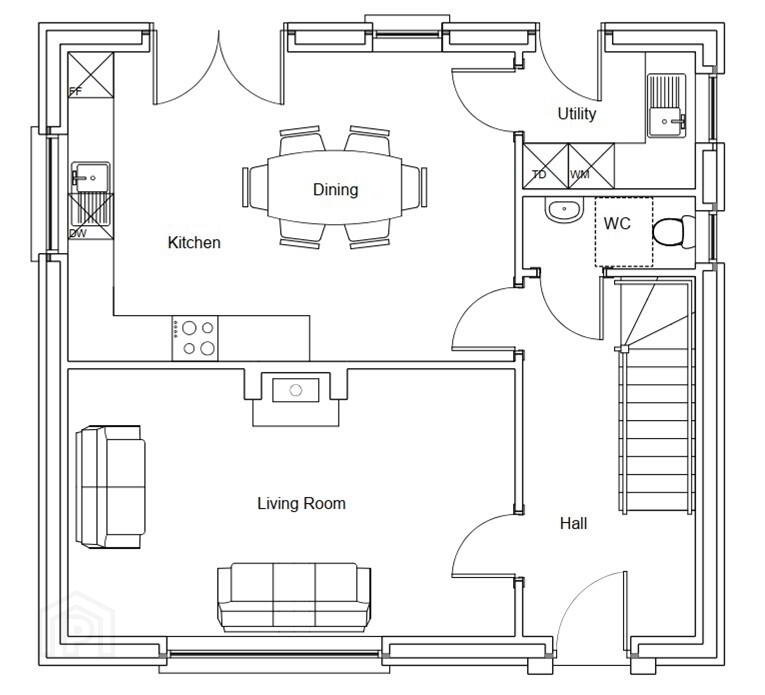
Ground floor:

Living room - 5.86m x 3.51m

Kitchen diner - 5.86m x 4.06m

Utility room - 2.26m x 1.80m

Ground floor - WC 2.26m x 0.95m

 

First floor

Bedroom one - 4.21m x 3.51m

Ensuite - 2.44m x 1.40m

Bedroom two - 3.92m x 3.51m

Bedroom three - 3.70m x 2.85m

Bedroom four - 2.26m x 2.85m

Bathroom - 2.07m x 2.85m

**Bathroom includes separate bath and shower**

 

**Finishes shown maybe subject to change and upgrades - External image of previously comepleted property**

Need some more information?

Fill in your details below and a member of our team will get back to you.

Please check you have entered all details correctly: