Estate Agents in Portadown, Northern Ireland
« Back
Sale agreed | 3 Bed Bungalow |
Sale agreed £225,000

Key Information

Address 3 Greenisland Road, Portadown
Style Bungalow
Status Sale agreed
Price Offers around £225,000
Bedrooms 3
Bathrooms 1
Receptions 1
Heating Oil
EPC
EPC 1 of 3 Greenisland Road, Portadown

Features

  • Beautiful detached cottage that has been fully modernised to a high standard
  • Three bedrooms
  • Dual aspect kitchen dining with beautifully designed modern kitchen units
  • Spacious living room with attractive laminate flooring
  • Fully tiled shower room with attractive vanity under sink and electric heated mirror with lighting
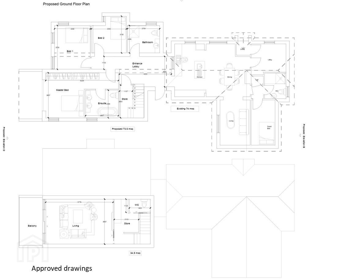
  • Planning approval for stunning bespoke extension
  • Fabulous site extending to C0.5 acres with panoramic views of the countryside
  • uPVC framed double glazed windows, fascia and soffits
  • CAT 6 wired to TV points
  • Oil Fired Central Heating

Additional Information

Rarely does a property come up for sale in this sought after location, and we anticipate strong interest in this beautiful cottage situated at 3 Greenisland Road, Portadown. Within easy reach of the M1 and Portadown, this home has been fully modernised throughout to an exacting standard level of finish. It is set within approximately 0.5 acres and has a generous garden with unspoilt views of the surrounding countryside. It offers three bedrooms, two of which have built in storage, spacious living room, beautiful fitted kitchen and stunning shower room. It is also being offered with planning approval in place for an extension with well planned floor layout which would increase the property size to C1800 square feet. There are two entrances to this property, and endless parking for cars. This home simply must be viewed to fully appreciate just how good it is!

ENTRANCE HALL
Composite entrance door with glazed. Herringbone Wood effect laminate flooring. 

LOUNGE
3.77m x 4.55m (12' 4" x 14' 11")(MAX)
Front aspect reception room. Chimney breast with space for electric stove / stove. TV point for wall mounted TV. Wood effect laminate flooring. Double panel radiator. Nuaire Drimaster, Positive Input Ventilation system.

KITCHEN DINER
2.57m x 4.54m (8' 5" x 14' 11")
Dual aspect kitchen diner with UPVC stable style door giving access to rear. Range of high and low kitchen cabinets. Electric cooker with double oven and four ring hob with angled extractor hood. Ceramic one and half bowl sink and drainage unit with mixer tap. Space for washing machine and fridge freezer. Recessed lighting. Tiled flooring and splashback. Double panel radiator. 

REAR HALLWAY
Access to hot press and attic. 

MASTER BEDROOM
2.60m x 3.88m (8' 6" x 12' 9")
Rear aspect double bedroom. TV point for wall mounted TV. Wood effect laminate flooring. Single panel radiator.


BEDROOM TWO
2.05m x 3.00m (6' 9" x 9' 10") (MAX)
Side aspect bedroom. Built-in storage. Wood effect laminate flooring. Single panel radiator. 

BEDROOM THREE
02.86m x 2.22m (9' 5" x 7' 3")
Front aspect bedroom. Wood effect laminate flooring. Single panel radiator. Built-in storage. 

FAMILY BATHROOM
1.69m x 2.17m (5' 7" x 7' 1")
Fully tiled bathroom with large walk-in shower enclosure including mains fed rainfall showerhead and additional showerhead attachment. Back to wall dual flush WC and wall hung wash hand basin with vanity unit below. Electric heated mirror with lighting. Heated towel rail. Extractor fan. 

OUTSIDE
Spacious private site with views over surrounding countryside. Gated access with gravelled driveway leading to large gravelled parking area. Majority of garden laid in lawn. Oil fired burner and oil tank. Outside tap and range of outside lighting. Wiring for connection to shed.

Need some more information?

Fill in your details below and a member of our team will get back to you.

Please check you have entered all details correctly: