Joyce Clarke Estate Agents

Hta, Birchview Lodge, Clonmakate Rd, Portadown BT62 1WR

4 Bed Detached House with garage For Sale

Price £425,000

Print additional images & map (disable to save ink)

Photo 1 of Hta, Birchview Lodge, Clonmakate Rd, Portadown

Telephone:

028 3833 1111

View Online:

www.joyceclarke.team/1054658

Show Home Open Viewing: By appointment only

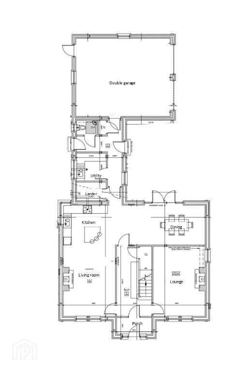
Four bedroom detached with double garage

Impressive four bedroom detached home with open plan living kitchen diner, master suite with walk through dressing room and ensuite and attached double garage. Extends to approximately 2,533 sq/ft excluding garage

Key Information

House Type HTA
Style Detached House with garage
Status For sale
Price £425,000
Bedrooms 4
Bathrooms 3
Receptions 2
Heating Oil

Property Units

Unit Name Price Size
Site 8 Birchview Lodge £425,000 2,533 sq. feet

Additional Information

Birchview Lodge

The Birches

Clonmakate Road

Portadown

Charming & Captivating Development of Detached Family Homes

by WS Developments Ltd

This exciting development of detached Georgian inspired homes is situated within commuting
distance to Dungannon, Portadown and Armagh City Centre. The location is accessible to local M1
motorway links, convenient to Peat lands Park, National Trust Houses such as The Argory and
Ardress House.

Much care and attention has gone into the design of these fabulous homes in order to offer the
perfect combination of luxury and stylish living together with well planned accommodation that
offers all in a rural and tranquil setting.

This combined with a stylish external finish offers an exceptional package for families who desire to be within close proximity to Portadown and Dungannon.

External Features - 

• UPVC Double Glazed Windows
• Concrete String Course
• Composite Exterior Front Door
• Black Guttering and Downpipes
• Gardens top soiled
• Oil Fired Central Heating
• Extensive tarmac driveway
• Pressurised water system
• Traditional build construction
• Dash finish with glass fleck throughout
• Period style finishes

Internal Features - 

• PC allowance for kitchen units, door handles and worktops
• PC allowance for tiling to kitchen / dining, utility room, WC, bathroom and en suite (within selections)
• White Sanitary Ware to bathroom and en suite (inc shower pods)
• Internal painted walls, ceilings and including wood work
• Fireplace and wood burning stove allowances
• PC allowance for carpet to reception rooms, stairs and bedrooms
• White Internal Doors
• Moulded Skirtings & Architraves

Note: All images shown are previously completed properties of various house types. Finishes shown may be subject to upgrades.

We endeavour to make our sales details accurate and reliable, however they should not be relied on as statements or representations of fact and they do not constitute any part of an offer or contract. The seller does not make any representation or give any warranty in relation to the property and we have no authority t o do so on behalf of the seller. Any information given by us in these sales details or otherwise is given without responsibility on our part. Services, fittings and equipment referred to in the sales details have not been tested (unless otherwise stated) and no warranty can be given as to their condition. We strongly recommend that all information, which we provide, about the property is verified by yourself or your advisers. Site plans on brochures are not drawn to scale, however we are happy to provide scale drawings from our office. Artist’s impressions are for illustrative purposes only. All details including materials, finishes etc. should be clarified with the agents prior to booking. Please contact us before viewing the property. We will be happy to help with any queries

  • Joyce Clarke Estate Agents

    Joyce Clarke Estate Agents

    028 3833 1111

  • Multiple Developers

    Joyce Clarke Estate Agents

Photo Gallery

Photo 1 of Hta, Birchview Lodge, Clonmakate Rd, Portadown Photo 2 of Hta, Birchview Lodge, Clonmakate Rd, Portadown Photo 3 of Hta, Birchview Lodge, Clonmakate Rd, Portadown Photo 4 of Hta, Birchview Lodge, Clonmakate Rd, Portadown Photo 5 of Hta, Birchview Lodge, Clonmakate Rd, Portadown Photo 6 of Hta, Birchview Lodge, Clonmakate Rd, Portadown Photo 7 of Hta, Birchview Lodge, Clonmakate Rd, Portadown Photo 8 of Hta, Birchview Lodge, Clonmakate Rd, Portadown Photo 9 of Hta, Birchview Lodge, Clonmakate Rd, Portadown Photo 10 of Hta, Birchview Lodge, Clonmakate Rd, Portadown Photo 11 of Hta, Birchview Lodge, Clonmakate Rd, Portadown Photo 12 of Hta, Birchview Lodge, Clonmakate Rd, Portadown Photo 13 of Hta, Birchview Lodge, Clonmakate Rd, Portadown Photo 14 of Hta, Birchview Lodge, Clonmakate Rd, Portadown Photo 15 of Hta, Birchview Lodge, Clonmakate Rd, Portadown Photo 16 of Hta, Birchview Lodge, Clonmakate Rd, Portadown Photo 17 of Hta, Birchview Lodge, Clonmakate Rd, Portadown Photo 18 of Hta, Birchview Lodge, Clonmakate Rd, Portadown Photo 19 of Hta, Birchview Lodge, Clonmakate Rd, Portadown Photo 20 of Hta, Birchview Lodge, Clonmakate Rd, Portadown Photo 21 of Hta, Birchview Lodge, Clonmakate Rd, Portadown Photo 22 of Hta, Birchview Lodge, Clonmakate Rd, Portadown Photo 23 of Hta, Birchview Lodge, Clonmakate Rd, Portadown Photo 24 of Hta, Birchview Lodge, Clonmakate Rd, Portadown Photo 25 of Hta, Birchview Lodge, Clonmakate Rd, Portadown Photo 26 of Hta, Birchview Lodge, Clonmakate Rd, Portadown Photo 27 of Hta, Birchview Lodge, Clonmakate Rd, Portadown Photo 28 of Hta, Birchview Lodge, Clonmakate Rd, Portadown Photo 29 of Hta, Birchview Lodge, Clonmakate Rd, Portadown Photo 30 of Hta, Birchview Lodge, Clonmakate Rd, Portadown Photo 31 of Hta, Birchview Lodge, Clonmakate Rd, Portadown Photo 32 of Hta, Birchview Lodge, Clonmakate Rd, Portadown Photo 33 of Hta, Birchview Lodge, Clonmakate Rd, Portadown Photo 34 of Hta, Birchview Lodge, Clonmakate Rd, Portadown Photo 35 of Hta, Birchview Lodge, Clonmakate Rd, Portadown Photo 36 of Hta, Birchview Lodge, Clonmakate Rd, Portadown Photo 37 of Hta, Birchview Lodge, Clonmakate Rd, Portadown Photo 38 of Hta, Birchview Lodge, Clonmakate Rd, Portadown Floorplan 1 of Hta, Birchview Lodge, Clonmakate Rd, Portadown Floorplan 2 of Hta, Birchview Lodge, Clonmakate Rd, Portadown

Visit www.joyceclarke.team for further details.