Joyce Clarke Estate Agents

80m South West Of, 4 Fernagh Road, Omagh BT79 0HX

Building Plot For Sale

Price On Application

Print additional images & map (disable to save ink)

Photo 1 of 80m South West Of, 4 Fernagh Road, Omagh

Telephone:

028 3833 1111

View Online:

www.joyceclarke.team/1049614

Key Information

Address 80m South West Of, 4 Fernagh Road, Omagh
Status For sale
Price Price On Application
Land type Building Site

Additional Information

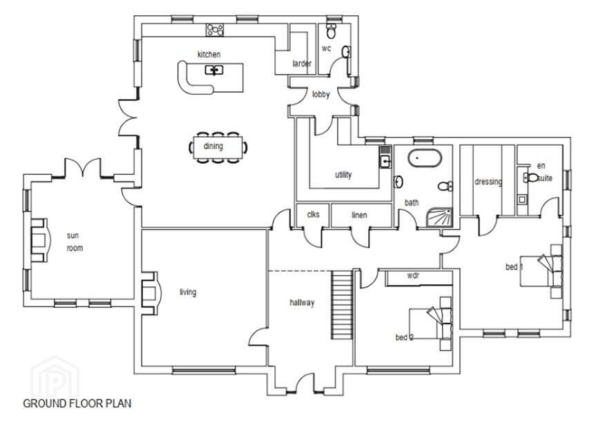
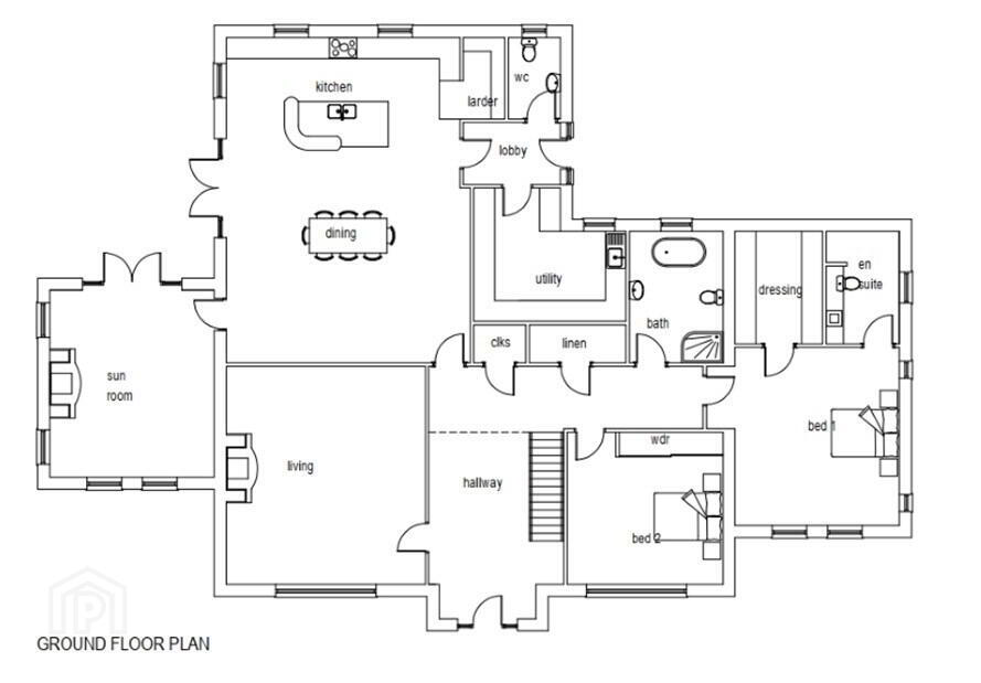
Full planning permission has been granted for a splendid countryside residence, featuring three reception areas and five bedrooms, totalling approximately 4,100 square feet. Nestled on approximately 0.4 acres, this property enjoys an enviable location on the outskirts of the breathtaking Sperrins Area of Outstanding Natural Beauty. Moreover, despite its tranquil setting, it is conveniently situated just a quarter of a mile from the main Omagh – Cookstown Road and 10-minute drive from Omagh town centre, offering effortless access to a diverse array of shopping and recreational amenities.

Additionally, planning permission has been granted for a detached double garage. This unique opportunity presents a perfect blend of rural charm, spacious living, and convenient access to town amenities.

Planning reference: LA10/2023/1362/F

  • Joyce Clarke Estate Agents

    Joyce Clarke Estate Agents

    028 3833 1111

Photo Gallery

Photo 1 of 80m South West Of, 4 Fernagh Road, Omagh Photo 2 of 80m South West Of, 4 Fernagh Road, Omagh Photo 3 of 80m South West Of, 4 Fernagh Road, Omagh Photo 4 of 80m South West Of, 4 Fernagh Road, Omagh Photo 5 of 80m South West Of, 4 Fernagh Road, Omagh Photo 6 of 80m South West Of, 4 Fernagh Road, Omagh Photo 7 of 80m South West Of, 4 Fernagh Road, Omagh Photo 8 of 80m South West Of, 4 Fernagh Road, Omagh

Visit www.joyceclarke.team for further details.