Joyce Clarke Estate Agents

Site Between 29 & 29a, Fernagreevagh Road, Loughgall BT61 8PN

Building Plot For Sale

Offers around £70,000

Print additional images & map (disable to save ink)

Photo 1 of Site Between 29 & 29a, Fernagreevagh Road, Loughgall

Telephone:

028 3833 1111

View Online:

www.joyceclarke.team/1049455

Key Information

Address Site Between 29 & 29a, Fernagreevagh Road, Loughgall
Status For sale
Price Offers around £70,000
Land type Building Site

Additional Information

SITE BETWEEN 29 & 29A FERNAGREEVAGH ROAD

We are pleased to offer for sale this superb building site with full planning permission approved for a dwelling and garage, set in beautiful County Armagh Countryside. Conveniently situated, the site provides ease of access to Loughgall, Portadown, Richhill and surrounding towns.

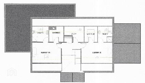
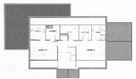
The site has been passed for a chalet bungalow extending to 2.915 sq ft consisting of five Bedrooms, three Bathrooms and two Receptions.

C 0.7 acres

Planning Ref: LA08/2021/0093/F

ELEVATIONS FOR ILLUSTRATION PURPOSES ONLY

  • Joyce Clarke Estate Agents

    Joyce Clarke Estate Agents

    028 3833 1111

Photo Gallery

Photo 1 of Site Between 29 & 29a, Fernagreevagh Road, Loughgall Photo 2 of Site Between 29 & 29a, Fernagreevagh Road, Loughgall Photo 3 of Site Between 29 & 29a, Fernagreevagh Road, Loughgall Photo 4 of Site Between 29 & 29a, Fernagreevagh Road, Loughgall Photo 5 of Site Between 29 & 29a, Fernagreevagh Road, Loughgall Photo 6 of Site Between 29 & 29a, Fernagreevagh Road, Loughgall Photo 7 of Site Between 29 & 29a, Fernagreevagh Road, Loughgall Photo 8 of Site Between 29 & 29a, Fernagreevagh Road, Loughgall Photo 9 of Site Between 29 & 29a, Fernagreevagh Road, Loughgall

Visit www.joyceclarke.team for further details.